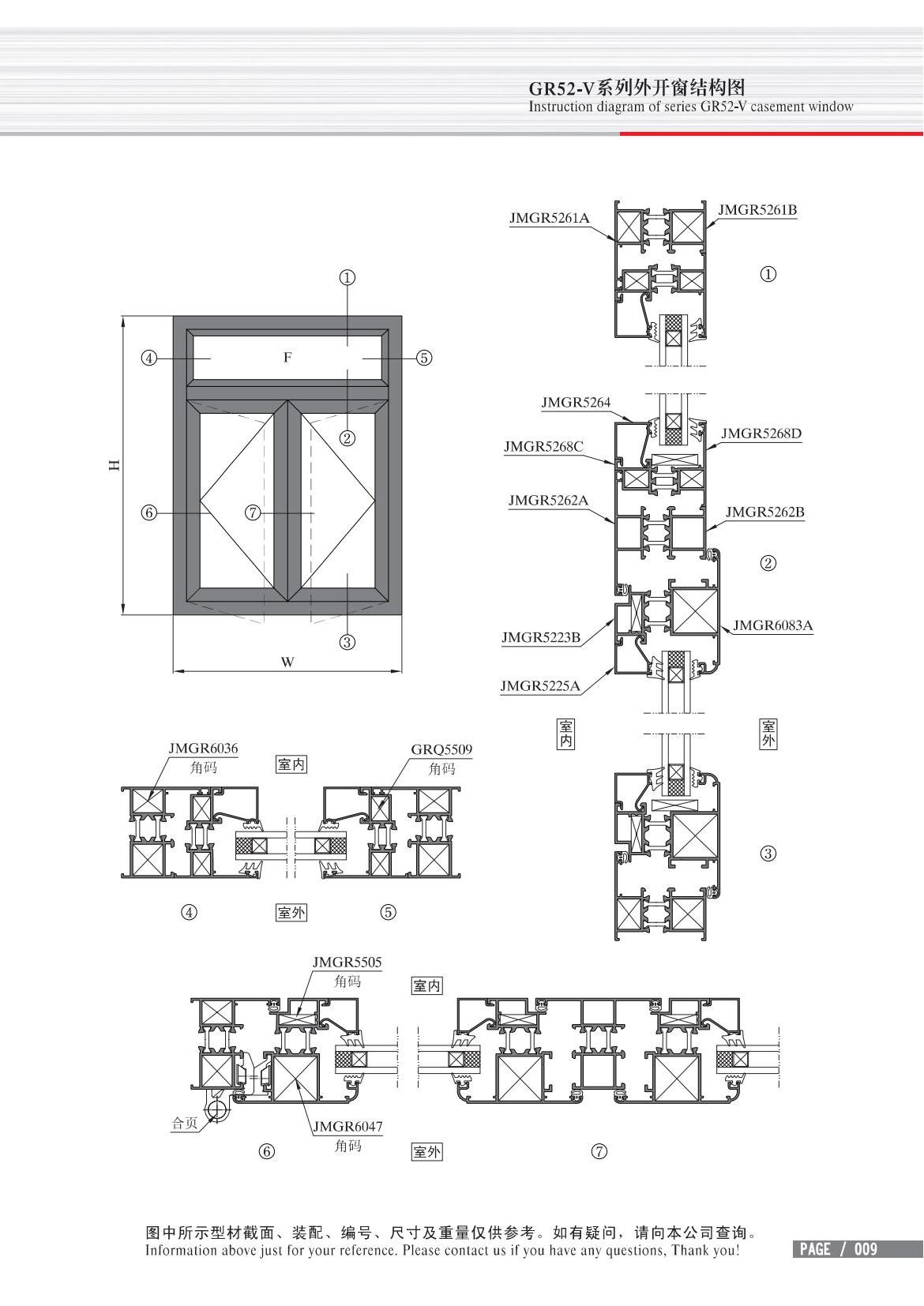
JMA aluminum Company has a complete set of production processes and mechanical equipment from aluminum profile research and development, casting, extrusion, mold design and manufacturing, surface treatment (oxidation, electrophoresis, powder spraying, fluorocarbon spray painting), thermal insulation profile processing, door and window curtain wall deep processing, etc. It has a complete aluminum profile production chain and complete auxiliary supporting processes, a complete set of process flow and production workshops. The main product varieties are divided into: base material, anodized profile, electrophoretic paint profile, powder spray profile, fluorocarbon paint spray profile, thermal insulation profile, wood grain profile and aluminum alloy door and window curtain wall. The GR52-V series casement windows focus on the smoothness and simplicity of lines in appearance, which can match various architectural styles and enhance the overall beauty of the building. The window fram…












